2d Sectional drawings detailing of apartment autocad software file
Description
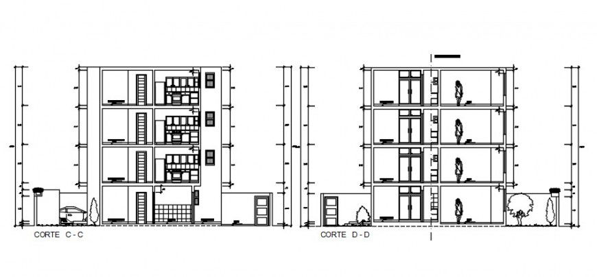
2d Sectional drawings details of apartment autocad software file that shows sectional drawings details of building along with staircase details and floor level dteials and leveling details. Staircase details and dimension door window blocks details also are shown in drawings
Uploaded by:
Eiz
Luna

