Floor electrical installation detailing plan dwg autocad file
Description
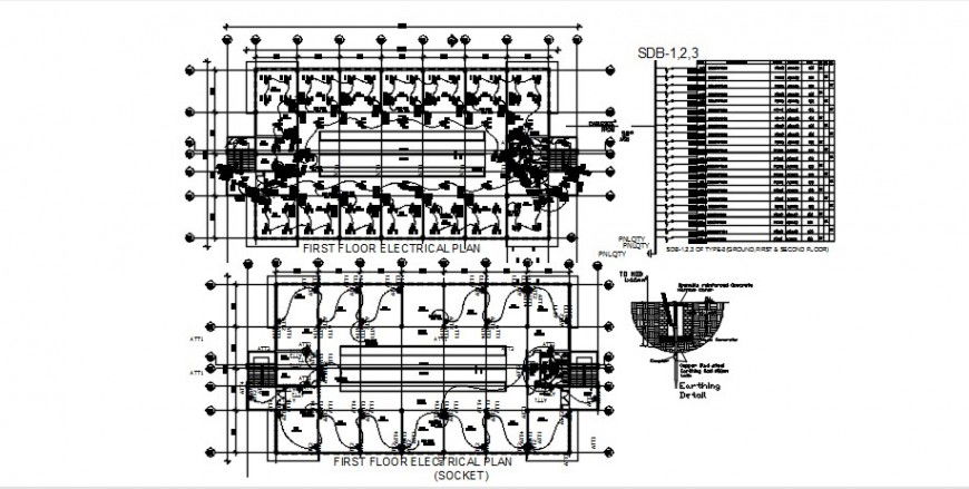
Floor electrical installation detailing plan dwg autocad file that shows electrical layout dteials in building along with earthing wire and electrical layout dteials and fuse circuits details also included in drawings.
Uploaded by:
Eiz
Luna
