2d CAD Drawings detail of electrical blocks dwg file
Description
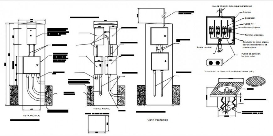
2d CAD Drawings detail of electrical blocks dwg file that shows dimension and naming texts details along with welded bolted joints and connections details, Fuse box details and circuits blocks detailing also provided in drawings.
File Type:
DWG
File Size:
80 KB
Category::
Electrical
Sub Category::
Electrical Automation Systems
type:
Gold
Uploaded by:
Eiz
Luna

