CAD drawings details of sanitary public toilet blocks dwg file
Description
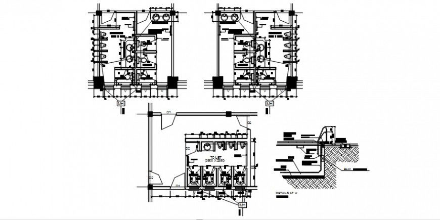
CAD drawings details of sanitary public toilet blocks dwg file that shows sanitary public toilet drawings details along with sanitary blocks details of water closet washbasin dteials and plumbing pipe and tap faucets details. Dimension details and other door vent details also included in drawings.
Uploaded by:
Eiz
Luna

