2 d cad drawing with stair and floor plan Auto Cad software
Description
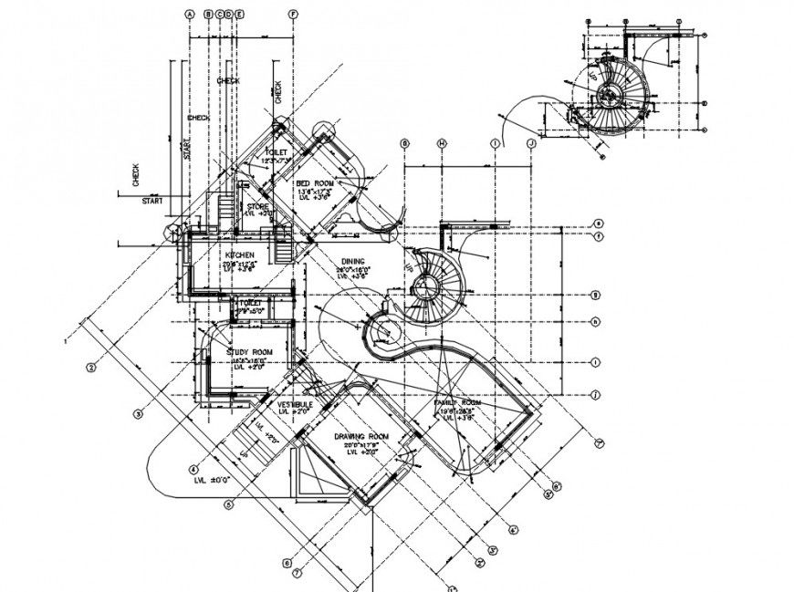
2d cad drawing with stair and floor plan autocad software with round wheel staircase with fsmily room ,drawing room and study room and dining area and bedroom and kitchen and common toilet area.
Uploaded by:
Eiz
Luna

