2 d cad drawing of strong room section Auto Cad software
Description
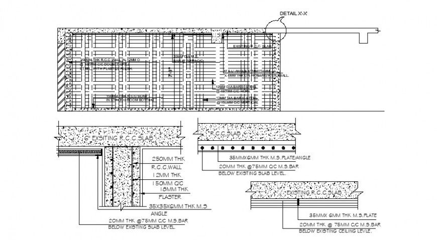
2d cad drawing of strong room section autocad software that detailed with existing rcc slab and plaster and shown with existing slab level and ceiling level and angle given in drawing.
Uploaded by:
Eiz
Luna

