2 d cad drawing of villa bank Auto Cad software
Description
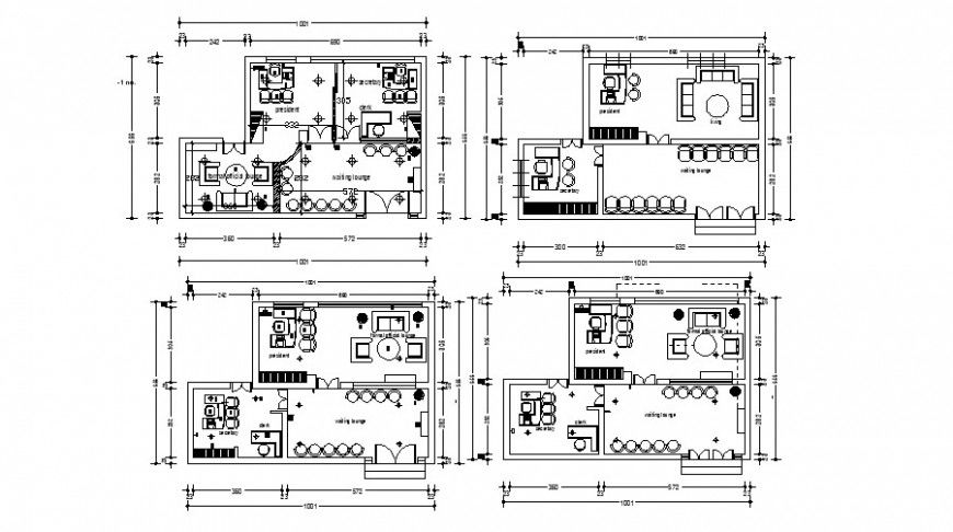
2d cad drawing of villa bank autocad software detailed with formal official lounge and waiting lounge seprately with president area and one room for clerk and secretary area been shown in drawing with mentioned material description and dimensions given for drawing.
Uploaded by:
Eiz
Luna

