2 d cad drawing of ulkaivila bank Auto Cad software
Description
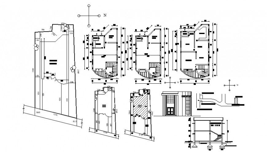
2d cad drawing of ulkaivila bank autocad software detailed with other plan of ground floor plan and first floor plan with hall and strong room and pantry area and toilet area with same layout seen in drawing and dimensions been mentioned in drawing.
Uploaded by:
Eiz
Luna

