2d cad drawing of shopping complex AutoCAD software
Description
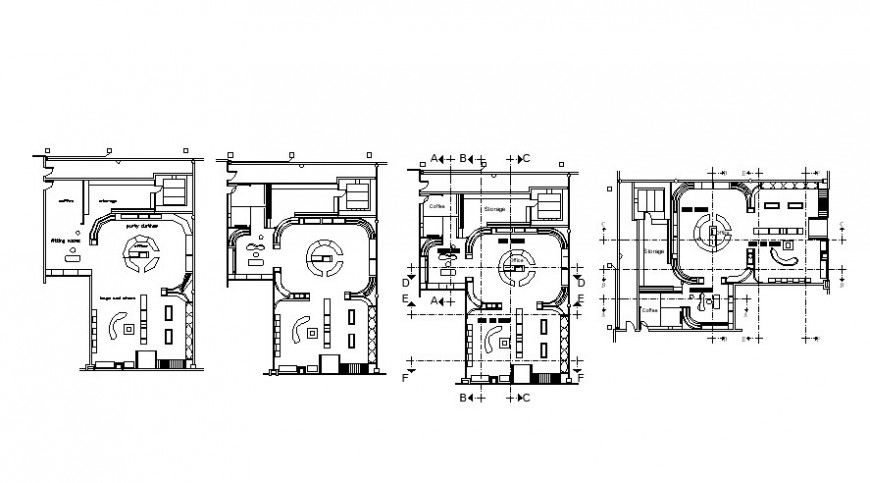
2d cad drawing of shopping complex autocad software detailed with bags ands shop and party clothes area seprately and office cabin and fitting rooms and storage area and coffee area with section lines and doors been seen in drawing
Uploaded by:
Eiz
Luna

