2 d cad drawing of home elevation top view Auto Cad software
Description
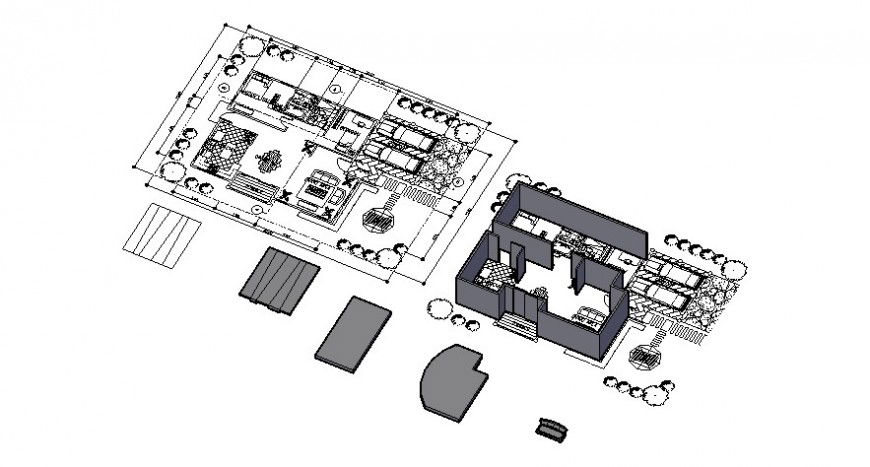
2d cad drawing of home elevation top view autocad software detailed with two car parking in area and living area with dining area and kitchen area two bedroom plan with toilet attached and garden area around been shown in drawing of house top view.
Uploaded by:
Eiz
Luna

