2 d cad drawing of kavanand school Auto CAD software
Description
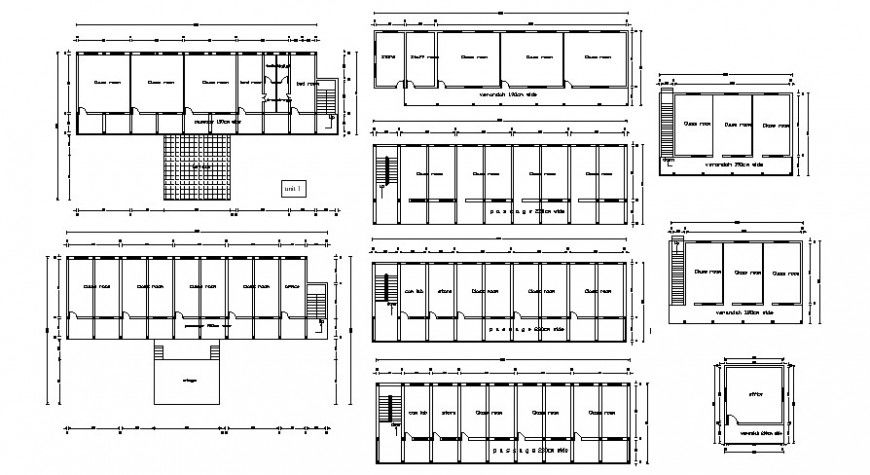
2d cad drawing of kavanand school autocad software detailed with huge spacious classroom section from class first to sixth on first floor and other classroom secondary level on other floor.
Uploaded by:
Eiz
Luna

