2 d cad drawing of school 7 Auto Cad software
Description
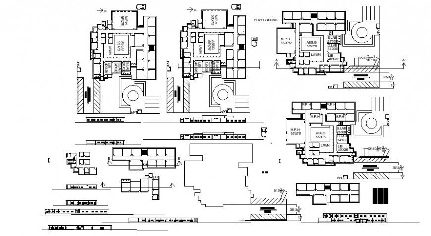
2d cad drawing of school 7 autocad software detailed with with classrooms and necessary teaching staff rooms and separate toilet area for girls and boys and other staff room toilet area separately and principal room and auditorium and huge classroom and other staff conference room for primary school and description.
Uploaded by:
Eiz
Luna

