2 d cad drawing of exterior villa Auto Cad software
Description
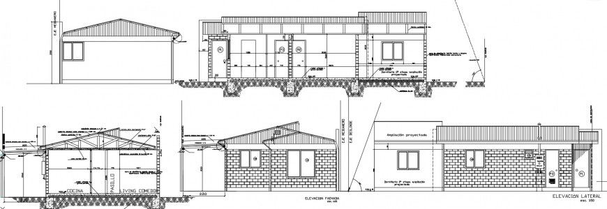
2d cad drawing of exterior villa autocad software with doors and windows and brick elevation shown in drawing and description given and ventilation window.
7
Uploaded by:
Eiz
Luna
2d cad drawing of exterior villa autocad software with doors and windows and brick elevation shown in drawing and description given and ventilation window.
7
Uploaded by:
Luna