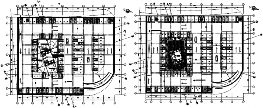
Two basement floor plan drawing details for office tower building dwg file
Description
Two basement floor plan drawing details for office tower building that includes a detailed view of indoor road details, dimensions and scale details, specified car ramp and space details and much more of parking floor details.
Uploaded by:
Eiz
Luna
