Shopping center building floor plan distribution drawing details dwg file
Description
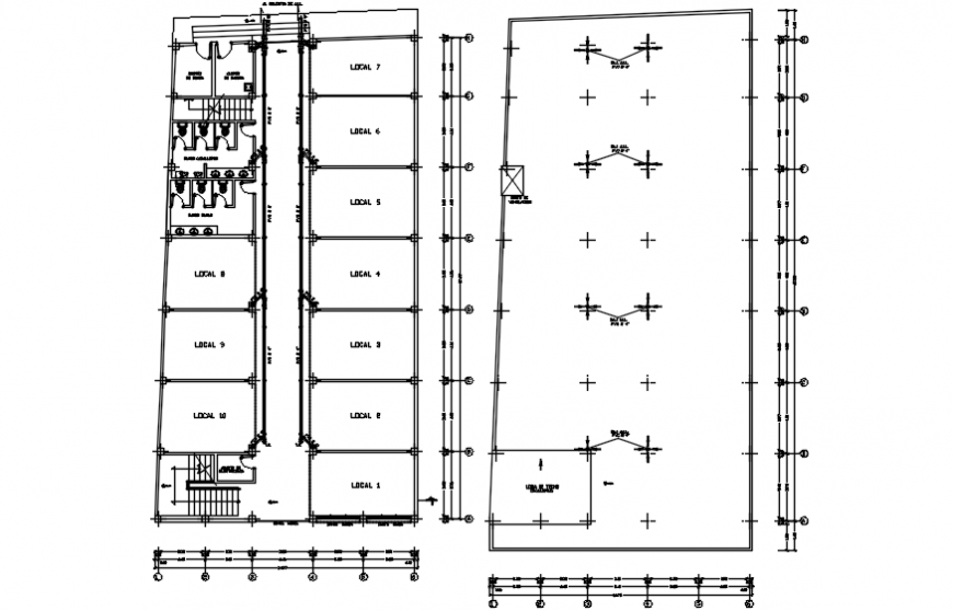
Shopping center building floor plan distribution drawing details that includes a detailed view of multi-purpose departments like loading and transportation trucks parking area, shops and showrooms, elevators and food stores and hotels and restaurants, salon and tattoo shops, party lounge and theater with retail markets sanitary facilities of all floors of male and female with spa centers and horror house and much more of shopping center mall building details.
Uploaded by:
Eiz
Luna

