All sided constructive section drawing details of transformer house dwg file
Description
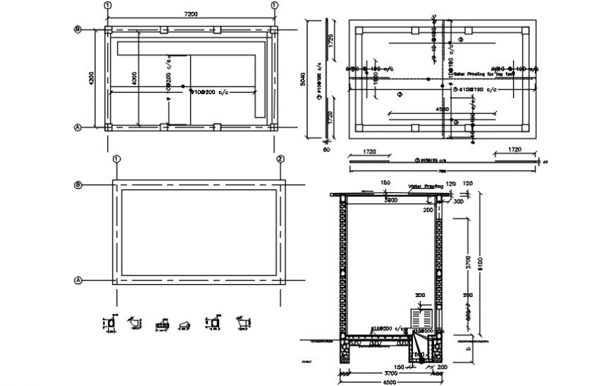
All sided constructive section drawing details of transformer house that includes memory of materials, footings details, column view and beam construction, covers closure type with soil buried wall closure and interior partition and granite veneer of the country with steel supports, halfeneisen type with Brick partition with plaster plastering and Concrete wall and much more of house details.
Uploaded by:
Eiz
Luna

