Light Pole Electrical CAD & Construction Section Drawing
Description
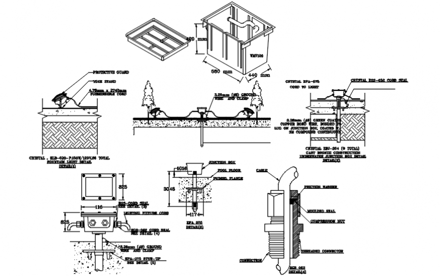
Light pole section, construction and electric installation details that includes computation and schedule of loads with general notes and specifications, panel board details, riser diagram with legends and electric equipment details, cable details and dimensions details and much more of electrical installation details.
File Type:
3d max
File Size:
4.6 MB
Category::
Electrical
Sub Category::
Electrical Automation Systems
type:
Gold
Uploaded by:
Eiz
Luna

