2 d cad drawing of Mukesh bhai elevation auto cad software
Description
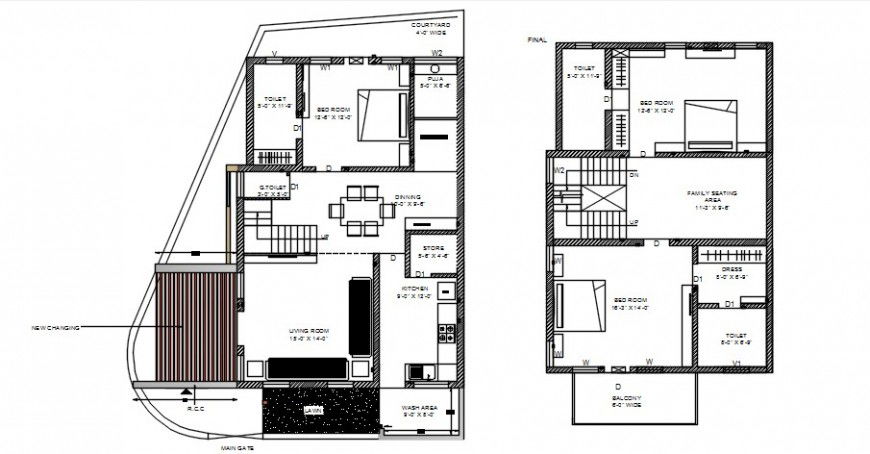
2d cad drawing of mukesh bhai elevation autocad software detailed with plan drawing with foyer area and living room and staircase area with dining area.kitchen area with store room.one master bedroom plan with toilet attached and Pooja room
Uploaded by:
Eiz
Luna

