2d Floor plan details of residential bungalow autocad file
Description
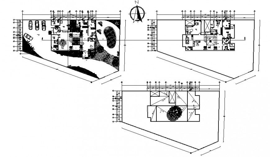
2d Floor plan details of residential bungalow autocad file that show work plan of the house along with furniture layout dteials in house and room details includes details of drawings room bedroom kitchen and dining area with sanitary toilet and bathroom details. Section line and parking space detials also included in drawings.
Uploaded by:
Eiz
Luna
