2 d cad drawing the detail of kitchen layout plan auto cad software
Description
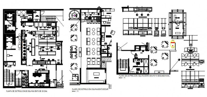
2d cad drawing the detail of kitchen layout plan autocad software detailed with kitchen wall and floor tiles seen with chimney and refrigerator and wash basin and gas stove with upper and lower cabinet been shown for the drawing and been given with plan and distribution level been seen in the drawing.
Uploaded by:
Eiz
Luna

