2d cad drawing of Emergency staircase plan detail auto cad software
Description
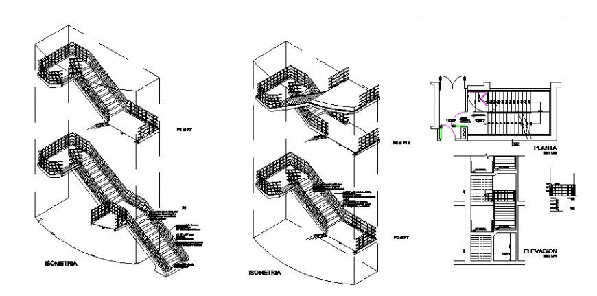
2d cad drawing of Emergency staircase plan detail autocad software tht shows the vertical floor level staitrcase area and elevation given for the drawing with other detailed with floor level staitcase for all the floor construction and plan with main door enterance and staircase on other side seen in drawing plan.
File Type:
DWG
File Size:
499 KB
Category::
Construction
Sub Category::
Construction Detail Drawings
type:
Gold
Uploaded by:
Eiz
Luna

