CAD Drawings details of office room plan elevation section dwg file
Description
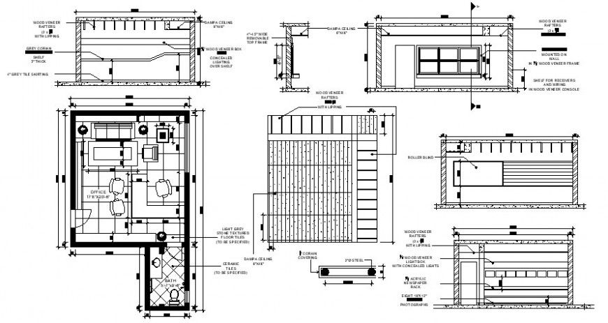
CAD Drawings details of office room plan elevation section dwg file that shows work plan of office room along with furniture blocks details and dimension hidden line dteials. Sectional details and elevation details with floor level detials also included in drawings.
File Type:
DWG
File Size:
545 KB
Category::
Interior Design
Sub Category::
Modern Office Interior Design
type:
Gold
Uploaded by:
Eiz
Luna

