Airport floor distribution plan cad drawing details dwg file
Description
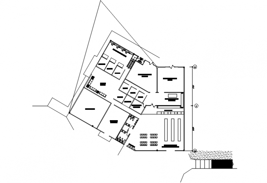
Airport floor distribution plan cad drawing details that includes a detailed view of multiple entry doors of different terminal and car parking area, indoor and outdoor garden area with main entry gate of airport with security check, waiting area and seating lounge, boarding gates and ticket counters with shopping areas with shopping branded stores with food stores and cafeteria, toilets for male and female, luggage room, car parking area, main waiting area hall, runway details, airplane view, interior and furniture details, runways and transportation truck and much more of airport plan details.
Uploaded by:
Eiz
Luna

