Building cut constructive section and structure details dwg file
Description
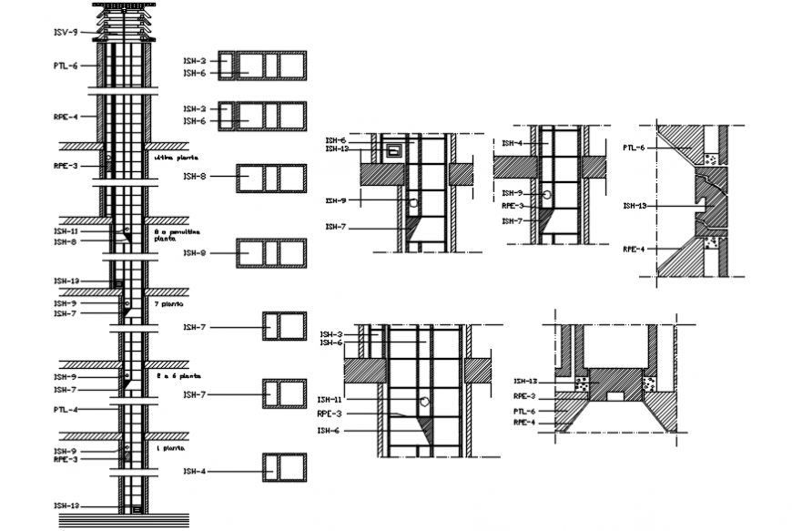
Building cut constructive section and structure details that includes a detailed view of free auto-cad file including flooring view with wall construction with memory of materials, footings details, column view and beam construction, covers closure type with soil buried wall closure and interior partition and granite veneer of the country with steel supports, halfeneisen type with Brick partition with plaster plastering and Concrete wall and much more of building details.
Uploaded by:
Eiz
Luna

