False ceiling constructive structure and section details of office cabin dwg file
Description
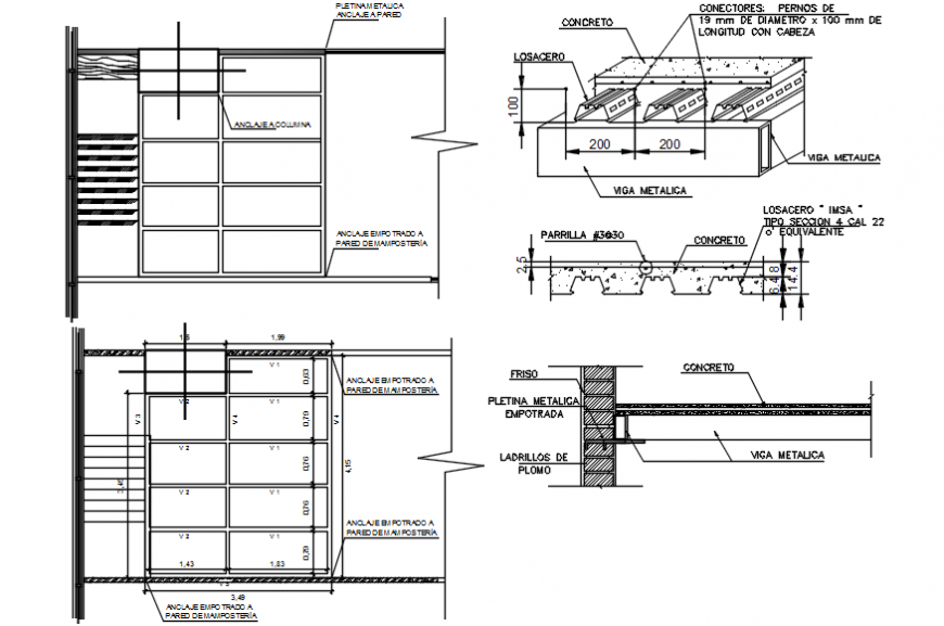
False ceiling constructive structure and section details of office cabin that includes a detailed view of Smooth embossed and riveted zinc-alum roof with structural osb board with expanded polystyrene, Extruded plywood, Piece pine wood and brushed dry with Vapor concrete base placement fiber plates provided with mineral types zumtobel staff and detail of change of level of acoustic tiles, isometric of baldest acoustical and much more of ceiling details.
Uploaded by:
Eiz
Luna

