pumping tank sewers effluents with details
Description
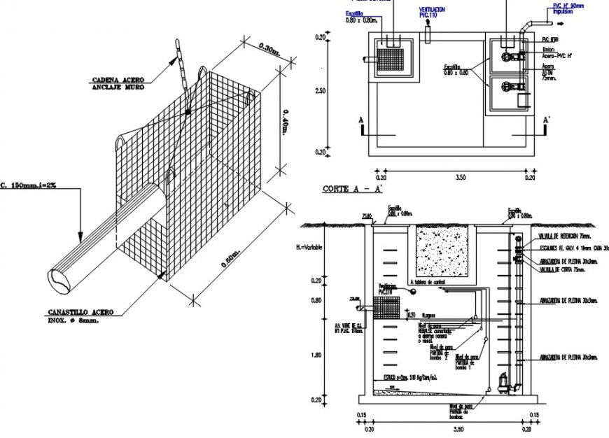
2 PUMPS MARK PEDROLO PMC 30/50, WITH VALVES OF RETENTION OF 2 1/2 "AND OF GATE OF 2 1/2", ENGINE OF 3 HP x 380 Volt., STEP OF SOLIDS 50mm. 3 MAC 3 LEVEL SENSORS, ELECTRICAL BOARD.
THE ELEVATOR FLOOR WILL CONVEY ALARM CONNECTED TO THE OFFICE OF THE HOSTEL, OF THE CONDOMINIUM.
Uploaded by:
Eiz
Luna

