2d CAD elevation and sectional details of house autocad file
Description
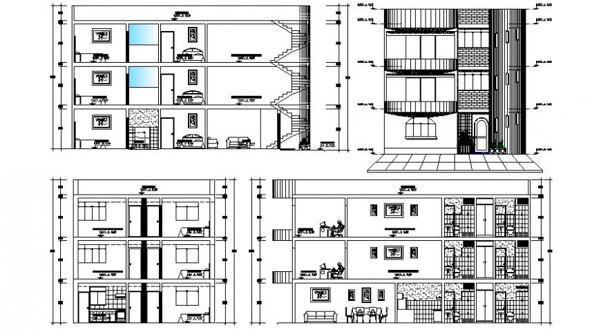
2d CAD elevation and sectional details of house autocad file that shows house different sides of elevation detials along with floor level details and furniture blocks details in house. Dimension leveling details with parking space detials also included in drawings.
Uploaded by:
Eiz
Luna

