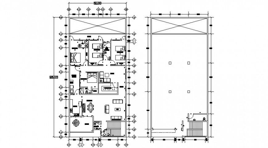
CAD plan of house layout details in autocad software file
Description
CAD plan of house layout details in autocad software file that shows a work plan of the house along with furniture details in house. Dimension hidden line details with section line details along with room details of drawings room bedroom kitchen and dining area with sanitary toilet and bathroom detials also included in drawings.
Uploaded by:
Eiz
Luna
