Bridge units with concrete mix machinery units details in autocad file
Description
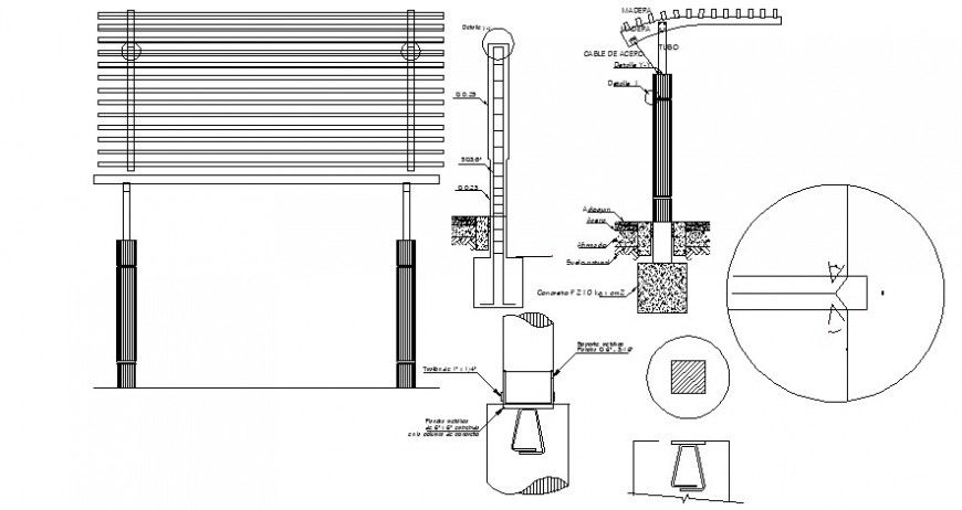
Bridge units with concrete mix machinery units details in autocad file that shows concrete mixer machine different side of elevation detials along with bridge structure drawings details and dimension dteials.
Uploaded by:
Eiz
Luna

