2d CAD elevation plan and sectional details of apartment dwg file
Description
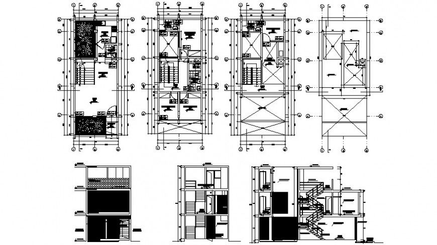
2d CAD elevation plan and sectional details of apartment dwg file that shows work plan of the house along with furniture details in house. Dimension hidden line details with section line details along with room details of drawings room bedroom kitchen and dining area with sanitary toilet and bathroom detials with building different sides of elevation and sectional details also included in drawings.
Uploaded by:
Eiz
Luna

