2D CAD Drawing of Wash Basin Installation for Precise Bathroom Layouts
Description
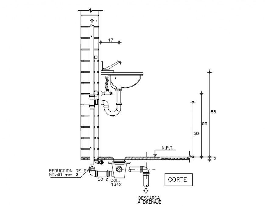
2d cad drawing of wash basin installation detail includes wash basin plumbing detail showing its plan, elevation and section including fixing detail of Bottle trap, Angle Valve, Floor Trap, Water supply, download in free cad file of wash basin installation.
File Type:
DWG
File Size:
25 KB
Category::
Dwg Cad Blocks
Sub Category::
Sanitary CAD Blocks And Model
type:
Gold
Uploaded by:
Eiz
Luna

