Multiple bridge electrical light poles sections and installation drawing details dwg file
Description
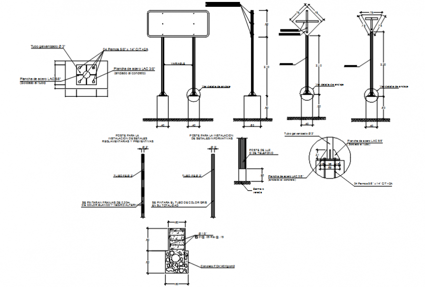
Multiple bridge electrical light poles sections and installation drawing details that includes a detailed view of pole footing construction with stairs concrete base, aluminum pole, measures and joints, constructive details, cuts and much more of pole details.
File Type:
DWG
File Size:
1.5 MB
Category::
Electrical
Sub Category::
Electrical Automation Systems
type:
Gold
Uploaded by:
Eiz
Luna

