Kitchen desk and furniture elevations and carpentry details dwg file
Description
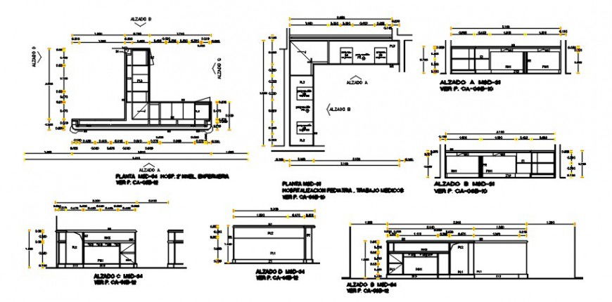
Kitchen desk and furniture elevations and carpentry details that include a detailed view of kitchen cabinet with shelving and drawers details, section and carpentry details etc with colours details and size details, type details etc for multi-purpose uses for cad projects.
Uploaded by:
Eiz
Luna

