Elementary school elevation, plan and structure details dwg file
Description
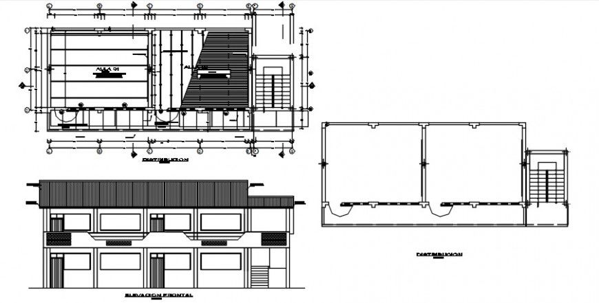
Elementary school elevation, plan and structure details that includes a detailed view of flooring view with indoor and outdoor doors and windows view and staircase elevation and sectional view details with main entry gate with parking area for students and staff and classrooms, stream departments, library and laboratory, staff room and cultural hall with sanitary for staff and sanitary for students, canteen/cafeteria, sports ground, meeting room, cleaning department, admission office, clerk room, principal or head office and much more of education building project with free download feature.
Uploaded by:
Eiz
Luna

