2d drawings of apartment plan elevation and section dwg autocad software file
Description
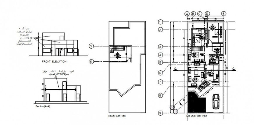
2d drawings of apartment plan elevation and section dwg autocad software file that shows work plan of the house along with furniture blocks details in house and roof plan details and house different sides of elevation and sectional details also included in drawings.
Uploaded by:
Eiz
Luna

