Drain ceiling roof down spout section and structure details dwg file
Description
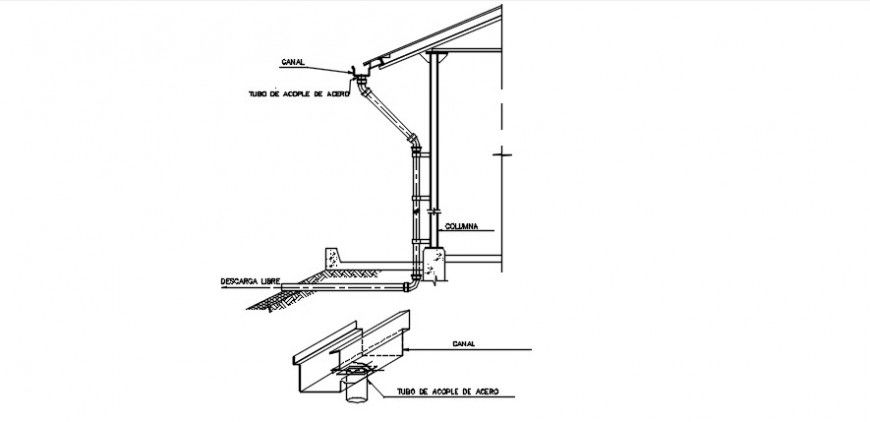
Drain ceiling roof down spout section and structure details that includes a detailed view of Reinforced concrete parapet with Stuffed with tezontle with average thickness, Stuck with cement-sand mortar prop with Waterproofing based on prefabricated membrane, Wall concrete hollow block smooth finish with based on granitic acrylic resins provide. Hollow block wall heavy type of cm, common finish with joined with sand cement mortar with horizontal reinforcement and drowned castles and galvanized steel sheet, finished and much more of roof details.
Uploaded by:
Eiz
Luna

