Main and side section drawing details of three story house dwg file
Description
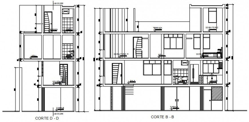
Main and side section drawing details of three story house that includes a detailed view of flooring view with indoor and outdoor doors and windows view and staircase elevation and sectional view details, balcony view with wall design, parking area and dimensions and roof or terrace view and much more of house details.
Uploaded by:
Eiz
Luna

