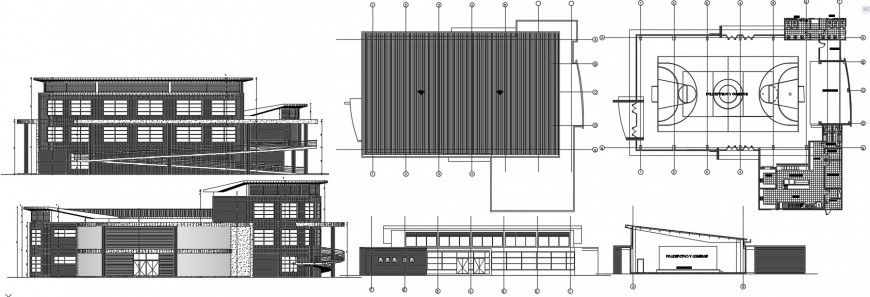
Primary school elevations, section and sports ground drawing details dwg file
Description
Primary school elevations, section and sports ground drawing details that includes a detailed view of flooring view with indoor and outdoor doors and windows view and staircase elevation and sectional view details, balcony view with wall design, parking area and dimensions and roof or terrace view and much more of school building details.
Uploaded by:
Eiz
Luna
