Cold storage warehouse distribution plan cad drawing details dwg file
Description
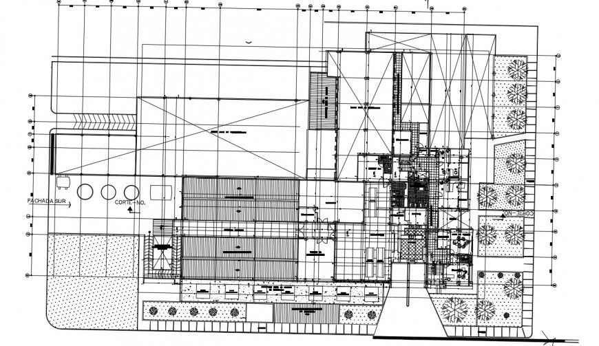
Cold storage warehouse distribution plan cad drawing details that includes a detailed view of wide roads and tree and plants with block numbers with main entry gate and security check area, garden area and loading area details and parking area provided.
Uploaded by:
Eiz
Luna

