CAD RCC structure 2d view drawings in autocad software file
Description
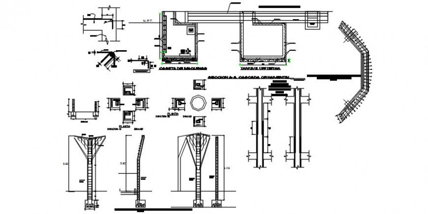
CAD RCC structure 2d view drawings in autocad software file that shows concrete masonry details along with reinforcement details in tension and compression zone with main and distribution bars detials and the structure is a reinforced concrete cement (RCC) structure.
File Type:
DWG
File Size:
761 KB
Category::
Construction
Sub Category::
Reinforced Cement Concrete Details
type:
Gold
Uploaded by:
Eiz
Luna

