Men standing water closet 2d view elevation dwg autocad file
Description
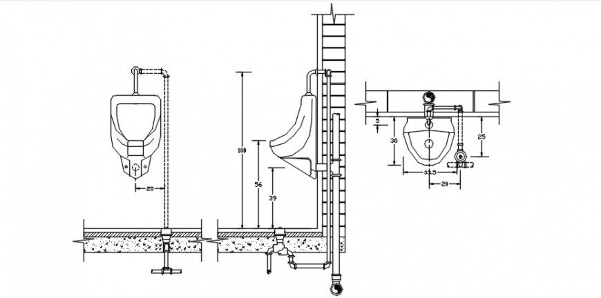
Men standing water closet 2d view elevation dwg autocad file that shows different sides of elevation of sanitary blocks like front elevation side elevation and top elevation. Dimension and other details of sewer pipe details also included in drawings.
File Type:
DWG
File Size:
41 KB
Category::
Dwg Cad Blocks
Sub Category::
Sanitary CAD Blocks And Model
type:
Gold
Uploaded by:
Eiz
Luna

