RCC structural blocks drawings 2d view autocad dwg file
Description
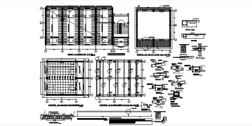
RCC structural blocks drawings 2d view autocad dwg file that shows concrete masonry details along with reinforcement details in tension and compression zone with main and distribution bars detials and the structure is a reinforced concrete cement (RCC) structure.
File Type:
DWG
File Size:
5 MB
Category::
Construction
Sub Category::
Reinforced Cement Concrete Details
type:
Gold
Uploaded by:
Eiz
Luna

