2d drawing of electrical installation layout plan dwg autocad file
Description
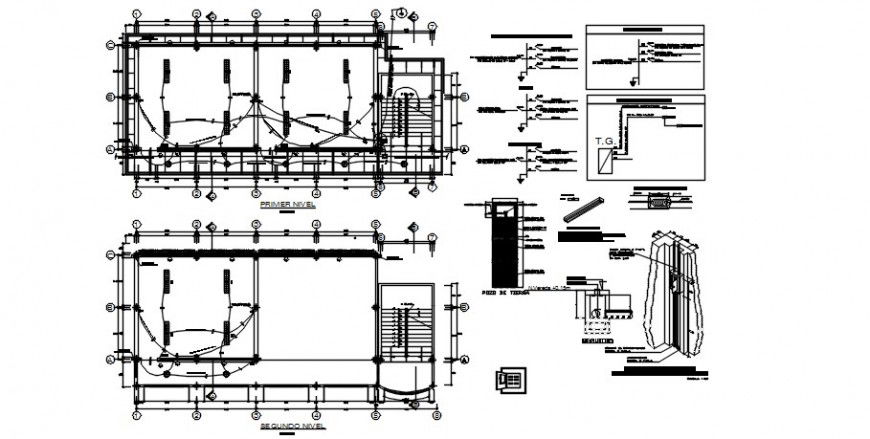
2d drawing of electrical installation layoyt plan dwg autocad file that shows electrical wirings dteials along with earthing wire and fuse circuits flow diagram details also included in drawings.
Uploaded by:
Eiz
Luna

