CAD foundation structure 2d view drawing details autocad file
Description
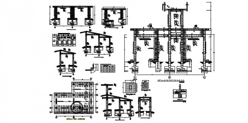
CAD foundation structure 2d view drawing details autocad file that shows concrete masonry details along with reinforcement details in tension and compression zone with main and distribution bars detials and the structure is a reinforced concrete cement (RCC) structure.
Uploaded by:
Eiz
Luna

