2d CAD restaurant building floor layout plan dwg file
Description
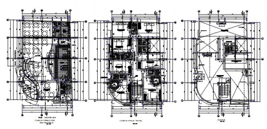
2d CAD restaurant building floor layout plan dwg file that shows work plan drawings details of building along with furniture blocks dteials in building and dimension hidden line staircase dteials also included in drawings.
Uploaded by:
Eiz
Luna

