Elevation and sectional drawings of apartment dwg autocad file
Description
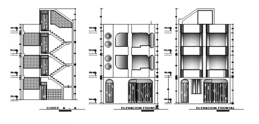
Elevation and sectional drawings of apartment dwg autocad file that shows housing apartment different sides of elevation along with floor level dteials and sectional dteials of house staircase door window blocks leveling details also included in drawings.
Uploaded by:
Eiz
Luna

