Building drawings detail with electrical installation dwg file
Description
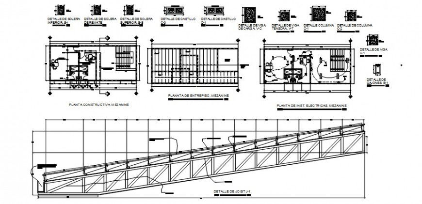
Building drawings detail with electrical installation dwg file that includes work plan drawings dteials of building along with electrical installation layout dteials and staircase dimension hidden line dteials also included in drawings.
Uploaded by:
Eiz
Luna

