Religious church distribution plan and landscaping details dwg file
Description
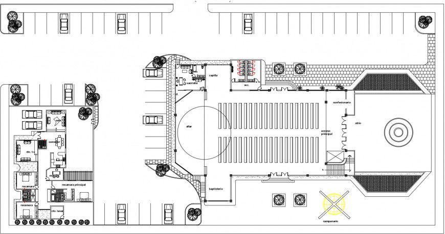
Religious church distribution plan and landscaping details that include a detailed view of main entry gate with garden area and tree view and lawn area with car parking area with surveillance, ventilation duct and cleaning deposit provided. Private zone, meditation passage, chairs and prayer hall and admin office, sanitary facilities and much more of the church project.
Uploaded by:
Eiz
Luna

