2d Plan and sectional drawings details of kitchen area dwg file
Description
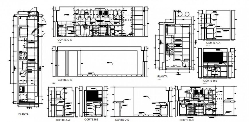
2d Plan and sectional drawings details of kitchen area dwg file that shows kitchen floor plan details of kitchen area along with kitchen automation blocks detail and dimension Section line and sectional detail of the kitchen also included in drawings.
File Type:
DWG
File Size:
890 KB
Category::
Construction
Sub Category::
Kitchen And Remodeling Details
type:
Gold
Uploaded by:
Eiz
Luna
