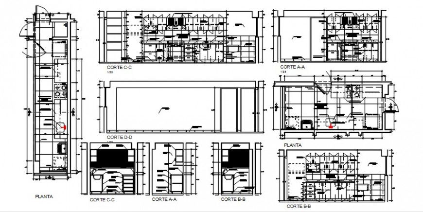
Layout plan of the kitchen with sectional detailing dwg file
Description
Layout plan of the kitchen with sectional detailing dwg file that shows the kitchen floor plan details of kitchen area along with kitchen automation blocks dteials and dimension section line and sectional dteials of the kitchen also included in drawings.
Uploaded by:
Eiz
Luna
